SHINELONG Kagamitan sa Kusina - Isang nangungunang supplier ng mga turnkey na solusyon sa kusina sa industriya ng hospitality at catering simula noong 2008.
Maligayang pagdating sa kapana -panabik na mundo ng pagmamay -ari ng pizzeria! Ang pagbubukas ng iyong unang tindahan ng pizza ay isang kapana -panabik na pakikipagsapalaran na puno ng mga pagkakataon at mga hamon. Ang pinuno sa mga hamong ito ay ang paglabas ng iyong komersyal na kusina at tinitiyak na ang disenyo nito ay nasa gawain. Iyon ang dahilan kung bakit ko isinusulat ang artikulong ito.
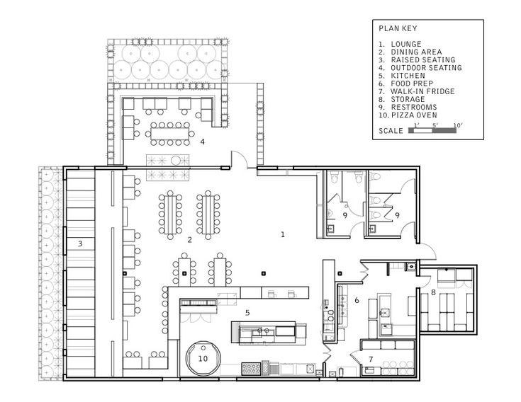
Ang kahalagahan ng kusina
Una muna, pag -usapan natin ang tungkol sa iyong kusina. Ang puso ng anumang pizzeria ay ang kusina nito. Tulad nito, ang pagtiyak na ang iyong kusina ay kumpleto at maayos na dinisenyo ay mahalaga sa tagumpay ng iyong negosyo, mula sa kahusayan sa pagpapatakbo hanggang sa kalidad ng pagkain. Tulad ng alam nating lahat, ang isang mahusay na organisadong kusina na may sapat na mga workstation at modernong kagamitan ay nagsisiguro ng maayos na operasyon. Ang pag -aayos ng oven, lugar ng paghahanda ng pagkain, at dishwashing zone ay maaaring makabuluhang mag -ambag sa pagiging produktibo. Kailangang tiyakin ng mga pizzerias ang kaligtasan ng pagkain muna at pinakamahalaga, at ang isang malinis at kalinisan na kusina ay ang unang linya ng pagtatanggol sa pagtiyak sa kaligtasan ng pagkain. Ang isang mahusay na binalak na kusina ay magkakaroon ng mga itinalagang lugar para sa ligtas na paghawak ng pagkain at pag-iimbak, na tinitiyak ang isang sanitary environment. Kasabay nito, ang kusina ay kung saan nangyayari ang mahika. Ang kalidad ng mga kagamitan tulad ng mga oven at refrigerator ay maaaring magkaroon ng direktang epekto sa kalidad ng pizza at iba pang mga item sa menu.

Pagpili ng tamang kagamitan sa kusina
Ang bawat tool sa iyong kusina ay gumaganap ng isang kritikal na papel, at ang bawat piraso ng kagamitan ay may hawak na natatanging kahalagahan. Mula sa paghahanda ng iyong kuwarta hanggang sa pagluluto ng iyong pizza, ang bawat proseso ay nangangailangan ng mga tukoy na kagamitan, na idinisenyo upang maisagawa ang specialty function nito sa pagiging perpekto.
Ngayon tingnan natin ang uri ng kagamitan na kakailanganin mo. Ang tamang pagpili ng kagamitan ay maaaring gumawa o masira ang iyong pizzeria, na nakakaapekto sa lahat mula sa kalidad ng iyong pizza hanggang sa pangkalahatang kahusayan ng iyong operasyon. Narito ang ilang mahahalagang piraso ng kagamitan:
Pizza oven: Ang puso ng iyong kusina. Isaalang -alang ang mga kadahilanan tulad ng uri ng pizza, dami, at puwang kapag pumipili ng isang oven.

Prep Tables: Ang isang palamig na talahanayan ng prep ay nagpapanatili ng mga toppings na sariwa at madaling ma -access.

Pizza Dough Mixer: Ang isang komersyal na grade mixer ay mahalaga para sa malaking dami ng paggawa ng kuwarta.

Sa esensya, ang bawat piraso ng kagamitan ay may hawak na malaking timbang sa pagbuo ng reputasyon ng iyong pizzeria para sa kalidad at serbisyo. Isaalang -alang ang bawat pagbili ng isang pamumuhunan sa hinaharap ng iyong pizzeria, na nakakaapekto hindi lamang sa lasa ng iyong pinggan kundi pati na rin ang iyong kahusayan, kasiyahan ng empleyado, at maging ang imahe ng iyong pizzeria.
Ang pagdidisenyo ng layout ng kusina
Kapag napili mo ang kagamitan, oras na upang tumuon sa disenyo ng iyong kusina. Ang isang mahusay na layout ng kusina ay maaaring mapahusay ang daloy ng trabaho at mapalakas ang pagiging produktibo.
Kaligtasan muna: Tiyakin na sumusunod ang iyong kusina sa mga lokal na regulasyon sa kalusugan at kaligtasan.
Paggamit ng Space: Gawin ang buong paggamit ng iyong puwang sa kusina, ngunit siguraduhin na huwag mag -overcrowd.
Kahusayan ng daloy ng trabaho: Dapat tiyakin ng iyong disenyo ang isang maayos na daloy ng trabaho. Ayusin ang iyong workspace upang ang lahat ay sumusunod sa isang lohikal na pagkakasunud -sunod.

Tandaan, ang reputasyon ng isang pizzeria ay lubos na nakasalalay sa kusina nito. Ang pagpaplano ng lugar ng kusina nang matalino habang isinasaalang -alang ang lahat ng mga salik na ito ay maaaring magtakda ng isang malakas na pundasyon para sa tagumpay ng iyong pizzeria. Kung nahihirapan ka pa rin sa kung anong kagamitan ang kailangan mong bilhin upang magbukas ng isang pizzeria, maaari kang mag -click sa aming website ng mall: https://shinelongstore.com/collections/pizzeria , kung saan hinati namin ang lahat ng mga produkto at kagamitan na kinakailangan para sa isang site ng pizzeria para sa iyong sanggunian!
Mula nang maitatag ang SHINELONG sa Guangzhou noong 2008, malaki na ang aming nagagawang pag-unlad sa larangan ng pagpaplano ng komersyal na kusina at paggawa ng mga kagamitan sa kusina.
IF YOU HAVE ANY QUESTION,PLEASE CONTACT US.
WhatsApp: +8618902337180
WeChat: +8618924185248
Telepono: 20-34709971
Fax: +86 20 34709972
Email:info@shinelongkitchen.com
Kontak Pagkatapos ng Pagbebenta
Whatsapp:+8619195343796
Email:service@chinashinelong.com
Idagdag: Blg. 1 Sentro ng Punong-himpilan, Tian An Hi-tech Ecological Park, Panyu Avenue, Guangzhou, Tsina.